

Zona, Marbella.
Arquitecto: Ana Hidalgo
Año: 2025
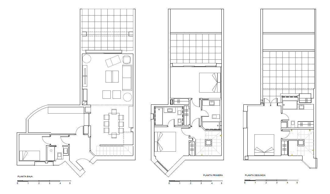
Reforma integral de vivienda en la urbanización Camoján Blanco, Marbella, obra del arquitecto César Manrique.
La vivienda se compone de tres plantas con un total interior de 180 m² construidos y de 55 m² de terrazas.
Una reforma integral intentando siempre respetar el alma de la arquitectura del arquitecto César Manrique, actualizando los espacios y dándoles más amplitud a base de eliminar falsos techos, subir puertas y armarios de altura.




























